Kontaktcenter
Skicka e-post till kommunen (e-postmeddelanden blir en allmän handling)
Ring kontaktcenter på telefon: 0371-810 00
Felanmälan och synpunkter
Ställ en fråga
Lämna en synpunkt eller gör en felanmälan
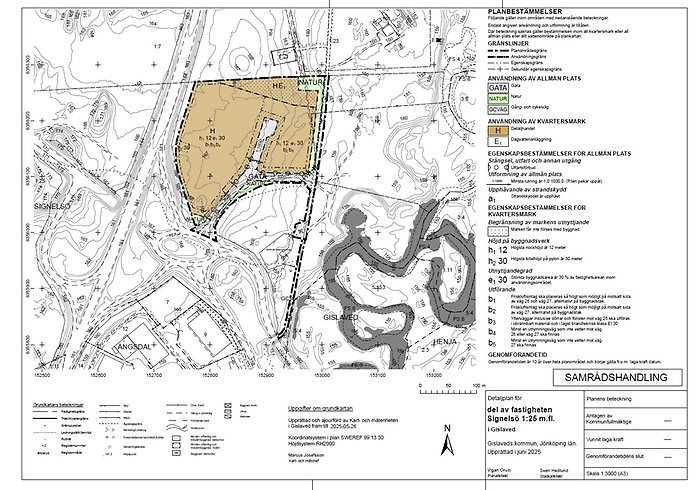
Detaljplan för del av fastigheten Signelsö 1.25 m.fl., i Gislaved
Steg i processen:
- Uppstart detaljplan
- Samråd
- Granskning
- Antagande
- Laga kraft
Syftet med planen är att möjliggöra etablering av handel i ett synligt läge längs väg 26. Planen syftar också till att förbättra och öka kapaciteten för gång-, cykel- och bilvägar i området, så att de kopplas samman med det befintliga Smålandia. Den möjliggör också etablering av Biltema.
Planområdet är beläget i norra delen av Gislaveds tätort och avgränsas av riksväg 26 och Trafikplats Norra. Detaljplaneförslaget innebär en möjlig utveckling och förstärkning av den befintliga handelsplatsen i området.
Planförslaget har varit ute på samråd
Förslaget fanns ute på samråd under tiden 23 juni – 1 september 2025 och ett samrådsmöte hölls i augusti 2025.
Nu sammanställs inkomna yttranden under samrådstiden och förslaget till detaljplan förbereds för granskning. Granskningstiden förväntas börja i december.
För mer information eller frågor om detaljplanen kontakta kommunens kontaktcenter.
Planhandlingar
Plankarta (samrådsförslag) Pdf, 2.8 MB.
Planbeskrivning (samrådsförslag) Pdf, 1.9 MB.
Information
För mer information eller frågor om planen kontakta kommunens kontaktcenter.

Plankarta, samrådsförslag
Sidans innehåll senast uppdaterat:
Saknar du något på denna sida?
Saknar du någon information på denna sida, eller om du har någon synpunkt på hur vi kan förbättra den vill vi gärna veta det. Dela med dig av dina tankar genom att fylla i formuläret.