Kontaktcenter
Skicka e-post till kommunen (e-postmeddelanden blir en allmän handling)
Ring kontaktcenter på telefon: 0371-810 00
Felanmälan och synpunkter
Ställ en fråga
Lämna en synpunkt eller gör en felanmälan
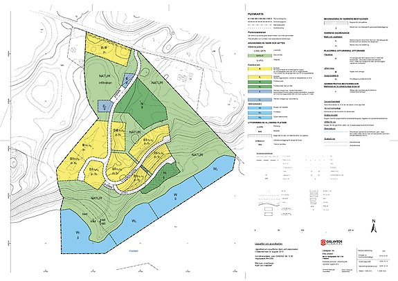
Viks strand, del av fastigheten Vik i Hestra
Planområdet omfattar cirka 10 hektar som idag består av mager skogsmark. Det är viktigt att naturen inom planområdet bevaras så långt det är möjligt och att byggnader och andra anläggningar anpassas och utförs med stor hänsyn till naturen.
Syftet med planen är att möjliggöra ett område för fritidsbebyggelse, friluftsliv och ett mindre antal permanentbostäder i strandnära läge i Vik vid Vikaresjön.
Detaljplanen fick laga kraft den 14 oktober 2020.
Sidans innehåll senast uppdaterat:
Saknar du något på denna sida?
Saknar du någon information på denna sida, eller om du har någon synpunkt på hur vi kan förbättra den vill vi gärna veta det. Dela med dig av dina tankar genom att fylla i formuläret.
