Kontaktcenter
Skicka e-post till kommunen (e-postmeddelanden blir en allmän handling)
Ring kontaktcenter på telefon: 0371-810 00
Felanmälan och synpunkter
Ställ en fråga
Lämna en synpunkt eller gör en felanmälan
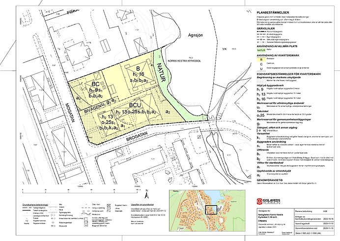
Detaljplan för fastigheten Norra Hestra Kyrkobol 1.39 m.fl. i Hestra
Planens syfte är att möjliggöra för omlokalisering av räddningstjänstens lokaler inom fastigheten Norra Hestra Kyrkobol 1:39, från den kulturhistoriskt värdefulla byggnaden där de för närvarande inryms. Planen syftar även till att möjliggöra för bostads- och centrumändamål, samt att säkerställa att strandskyddets syften uppfylls längs Agnsjön.
Detaljplanen fick laga kraft den 10 november 2023.

Sidans innehåll senast uppdaterat:
Saknar du något på denna sida?
Saknar du någon information på denna sida, eller om du har någon synpunkt på hur vi kan förbättra den vill vi gärna veta det. Dela med dig av dina tankar genom att fylla i formuläret.