Gislaveds kommun logotyp

Kontaktcenter

Skicka e-post till kommunen (e-postmeddelanden blir en allmän handling)
Ring kontaktcenter på telefon: 0371-810 00

Felanmälan och synpunkter
Ställ en fråga
Lämna en synpunkt eller gör en felanmälan

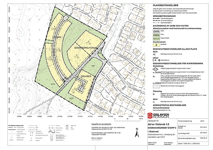
Del av Gislaved 1:5, Skomakargärdet Etapp 2, i Gislaved

Planens syfte är att pröva möjligheten att planlägga för nya bostäder och förslaget möjliggör för att olika former av bostadsbebyggelse skall kunna inrymmas inom planområdet.

Planen har vunnit laga kraft den 25 maj 2021.

PlankartaFörstora bilden
Kontaktuppgifter för denna sida

Sidans innehåll senast uppdaterat:

Saknar du någon information på denna sida, eller om du har någon synpunkt på hur vi kan förbättra den vill vi gärna veta det. Dela med dig av dina tankar genom att fylla i formuläret.



Annat innehåll du kanske är intresserad av

Hitta på sidan



Kontakta kommunen

När du inte kan lösa ditt ärende genom vår webbplats är du välkommen att kontakta oss. Du kan ringa, skicka e-post eller fysiskt besöka oss.

Öppettider i kontaktcenter

Telefontider

Måndag

08.00-16.00

Tisdag

09.00-15.00

Onsdag

09:00-15.00

Torsdag

09.00-15.00

Fredag

09.00-15.00

Lunchstängt:

12.00-12.30

Besök receptionen

Måndag 8.00-16.00

Tisdag-fredag 9.00-16.00

Andra öppettider kan förekomma i samband med helgdagar.

Dag innan röd dag samt afton är telefon och reception öppen 08.00-12.00.