Kontaktcenter
Skicka e-post till kommunen (e-postmeddelanden blir en allmän handling)
Ring kontaktcenter på telefon: 0371-810 00
Felanmälan och synpunkter
Ställ en fråga
Lämna en synpunkt eller gör en felanmälan
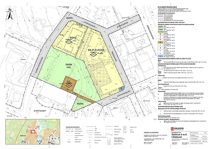
Centrum 2 mfl i Gislaved
Detaljplanen syftar i att möjliggöra en ny bebyggelse i centrala Gislaved. Visionen är att tillskapa moderna och hållbara bostäder i flerbostadshus med ett underliggande parkeringshus i två plan. Inom området ska det även inrymmas en förskola med tillhörande ytor och funktioner.
Johan Orreskolan ges en breddad användning så som bostad, skola och kontor och byggnadens kulturhistoriska värden värnas.
Detaljplanen syftar även i att möjliggöra utveckling av Johan Orreparken till ett aktivt utomhusområde för alla generationer.
Planen har fått lagakraft den 20 oktober 2021.
Planhandlingar
Sidans innehåll senast uppdaterat:
Saknar du något på denna sida?
Saknar du någon information på denna sida, eller om du har någon synpunkt på hur vi kan förbättra den vill vi gärna veta det. Dela med dig av dina tankar genom att fylla i formuläret.
